




Вахтовый городок ПР-М3-24
Описание:
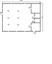
Увеличенный штаб строительства, изготовленный из четырех 6-метровых блоков с обшивкой из профлиста. Отличительная особенность данного модульного здания – объединение трех блоков в единое большое помещение, в котором может располагаться переговорная или несколько разделенных перегородками рабочих зон. В четвертом блоке располагается два кабинета (один с отдельным входом) и две туалетных кабинки.
Штаб строительства может поставляться в пяти вариантах внутренней отделки стен (но потолков – только три варианта), отделка туалетных кабин выполняется влагостойкими ПВХ-панелями. По запросу в здании прокладывается электропроводка и монтируется электрооборудование (осветительное, отопительное). Штаб для пуска в эксплуатацию требует установки на фундамент (блоки, плиты, винтовые сваи) и подключения к коммуникациям – эта работа требует минимальных затрат времени и средств.
Штаб строительства №24 – выгодное и простое решение для крупных строительных объектов.
Характеристика:
- Общие характеристики
- Количество блоков:8
- Количество этажей:1
- Габаритные размеры
- Длина:12 м
- Ширина:9.6 м
- Высота общая:2.4 м
- Общая площадь:115.2 кв. м
- Каркас металлический
- Цвет:Синий
- Основание:Швеллер холодногнутый 120х50х3 мм
- Угловые стойки:Уголок холодногнутый 90х90х3 мм
- Каркас второстепенный
- Стены, потолок:Доска строительная, 40х100 мм, не обработана антисептиком
- Утепление
- Стены, пол:Минеральная вата 50 мм
- Потолок:Минеральная вата 100 мм
- Гидропароизоляция
- Стены, пол, потолок:Пароизоляционная мембрана Класс В
- Внешняя отделка
- Стены:Оцинкованный проф. лист С8 0,4 мм
- Внутренняя отделка
- Стены сухих помещений:ДВП
- Потолок сухих помещений:ДВП
- Стены влажных помещений:ПВХ
- Потолок влажных помещений:ПВХ
- Пол
- Дно:Доска обрезная 25х100 мм, не обработана антисептиком
- Каркас:Доска обрезная 25х100 мм, половые лаги брус 40х100 мм, не обработаны антисептиком
- Пол черновой:Доска обрезная 25х100 мм, не обработана антисептиком
- Пол чистовой:ЦСП 12 мм
- Крыша
- Плоская сварная:Металлический лист – 1 мм. Швы обработанные мастикой, эмалированные.
- Окна, двери
- Окно:Окно ПВХ 0,8х1м, поворотное - 9 шт
- Дверь входная:Оргалитовая глухая, 2х0,8м, снаружи обшита оцинкованным листом – 2 шт.
- Дверь межкомнатная:Оргалитовая глухая, 2х0,8м – 4 шт.
- Цена: 1 000 000 ₸